LH 평택소사벌 A-7블록 행복주택 입주자 모집

| 1. 건설위치 : 경기도 평택시 비전동, 죽백동 일원 행복주택 350호 |


| 2. 임대대상 및 임대조건 |
|
공급
형별 |
공급
대상 |
공급호수
|
세대 당 계약면적(㎡) | 임대조건 |
전환
가능 보증금 한도액 (천원) |
최대전환시
임대조건 |
최대
거주 기간 (년) |
구조
및 난방 |
입주
예정 |
||||||||||
|
주거
전용 |
주거
공용 |
그 밖의 공용면적 |
합계
|
임대보증금(천원) |
월
임대료 (원) |
||||||||||||||
| 우선 공급 (172) |
일반 공급 (176) |
기타 공용 |
주차장 | 계 | 계약금 (5%) |
잔금 (95%) |
임대 보증금 (천원) |
월 임대료 (원) |
|||||||||||
|
21A
/21AH |
대학생
|
10
|
60
|
21.99
|
12.5073
|
4.6674
|
13.1519
|
52.3166
|
23,460
|
1,173
|
22,287
|
97,750
|
(+) | 6,000 | 29,460 | 67,750 |
6
|
철근
콘크리트 벽식 / 지역 난방 |
23.08
|
| (-) | 20,000 | 3,460 | 139,410 | ||||||||||||||||
|
청년(소득無)
|
50
|
23,460
|
1,173
|
22,287
|
97,750
|
(+) | 6,000 | 29,460 | 67,750 |
6
|
|||||||||
| (-) | 20,000 | 3,460 | 139,410 | ||||||||||||||||
|
청년(소득有)
|
24,840
|
1,242
|
23,598
|
103,500
|
(+) | 7,000 | 31,840 | 68,500 |
6
|
||||||||||
| (-) | 21,000 | 3,840 | 147,250 | ||||||||||||||||
|
26A
/26AH |
대학생
|
-
|
42
|
26.98
|
15.3455
|
5.7265
|
16.1363
|
64.1883
|
28,560
|
1,428
|
27,132
|
119,000
|
(+) | 10,000 | 38,560 | 69,000 |
6
|
||
| (-) | 24,000 | 4,560 | 169,000 | ||||||||||||||||
|
청년(소득無)
|
42
|
28,560
|
1,428
|
27,132
|
119,000
|
(+) | 10,000 | 38,560 | 69,000 |
6
|
|||||||||
| (-) | 24,000 | 4,560 | 169,000 | ||||||||||||||||
|
청년(소득有)
|
30,240
|
1,512
|
28,728
|
126,000
|
(+) | 12,000 | 42,240 | 66,000 |
6
|
||||||||||
| (-) | 25,000 | 5,240 | 178,080 | ||||||||||||||||
|
고령자
|
3
|
4
|
31,920
|
1,596
|
30,324
|
133,000
|
(+) | 13,000 | 44,920 | 68,000 |
20
|
||||||||
| (-) | 27,000 | 4,920 | 189,250 | ||||||||||||||||
|
주거급여
수급자 |
17
|
18
|
25,200
|
1,260
|
23,940
|
105,000
|
(+) | 7,000 | 32,200 | 70,000 |
20
|
||||||||
| (-) | 21,000 | 4,200 | 148,750 | ||||||||||||||||
|
26BH
|
고령자
(주거약자용) |
14
|
14
|
26.98
|
15.3455
|
5.7265
|
16.1363
|
64.1883
|
31,920
|
1,596
|
30,324
|
133,000
|
(+) | 13,000 | 44,920 | 68,000 |
20
|
||
| (-) | 27,000 | 4,920 | 189,250 | ||||||||||||||||
|
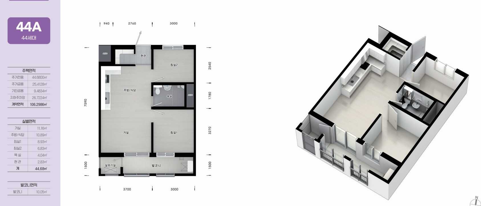
44A
|
신혼부부·
한부모가족 |
21
|
22
|
44.68
|
25.4128
|
9.4834
|
26.7224
|
106.2986
|
54,400
|
2,720
|
51,680
|
226,660
|
(+) | 27,000 | 81,400 | 91,660 |
6~10
|
||
| (-) | 46,000 | 8,400 | 322,490 | ||||||||||||||||
|
44BH
|
신혼부부·
한부모가족 |
15
|
16
|
44.85
|
25.5095
|
9.5195
|
26.8241
|
106.7031
|
54,800
|
2,740
|
52,060
|
228,330
|
(+) | 27,000 | 81,800 | 93,330 |
6~10
|
||
| (-) | 46,000 | 8,800 | 324,160 | ||||||||||||||||
• 공급신청은 공급형별 및 공급대상별로 하여야 합니다. 단, 21A/21AH형, 26A/26AH형 주택은 공급형을 통합하여 청약신청을 받아, 동별·층별·향별 구분 없이 추첨합니다.
• 우선공급이 미달된 경우 남은 우선공급물량은 해당 공급대상자의 일반 공급물량으로 전환하여 공급합니다.
• 21A/AH형 및 26A/AH형의 “대학생계층”의 일반공급 물량과 “청년계층”의 일반공급 물량은 각 형별로 통합 추첨하여 공급합니다.
• 26A/AH 일반공급물량 중 동일 공급형별로 청약미달인 계층의 공급물량은 타 공급대상 계층으로 전환하여 추첨 및 공급합니다. (대학생·청년→ 고령자 → 주거급여수급자 → 대학생·청년)
• 소득이 없는 “청년 계층” 신청자는 동일 면적의 대학생 계층 임대조건이 적용됩니다. 임대조건은 재계약전까지 유지되며 재계약시 소득 유무에 따라 변경된 임대조건을 적용합니다.
• 행복주택 입주자가 거주하는 동안 다른 공급대상의 입주자격을 갖추는 경우에는 공급대상을 변경하여 변경된 공급대상의 임대조건으로 새로 계약을 할 수 있으며, 새로 계약을 하는 시점부터 변경된 공급대상의 최대 거주기간을 새로 적용합니다.
• 대학생, 청년 등이 거주 중 신혼부부·한부모가족의 입주자격을 갖추는 경우 동일단지 내 전용면적 36㎡이상 주택형의 예비자 중 가장 후순위로 등록할 수 있습니다.
• 고령자에 배정된 주거약자용 주택은 안전하고 편리한 주거생활을 위하여 편의시설이 설치된 주택으로, 주거약자 편의시설이 설치된 주택을 희망하거나 추가 설치를 희망하는 경우에는 ‘주거약자용 주택형(26BH형)’을 신청하시기 바랍니다.
• 주거전용면적은 주거의 용도로만 쓰이는 면적이며, 주거공용면적은 계단, 복도, 주현관 등 공동주택의 지상층에 있는 공용면적이며, 그 밖의 공용면적은 주거공용면적을 제외한 관리사무소, 경비초소, 지하층 등의 공용면적입니다.
• 21A/21AH형의 주택에는 냉장고(장), 옷장, 책상이 설치됩니다. (타 평형 미설치)
• 위 임대조건의 임대보증금 및 월임대료는 입주자모집공고일 현재 기준이며, 예비입주자로 선정된 분은 추후 공가가 발생하여 임대차계약을 체결하게 되는 시점의 주변시세를 반영한 변경 임대조건이 적용됩니다.
• 월임대료의 임대보증금 전환 및 임대보증금의 월임대료 전환은 임차인의 선택사항으로서 임대보증금 100만원 단위로 전환 가능합니다.
• 위 최대전환시 임대조건은 월임대료의 임대보증금으로 전환시 이율 6%, 임대보증금의 월임대료로 전환시 이율 2.5%를 적용하며, 향후 전환이율이 변경되는 때에는 변경된 이율을 적용하여 다시 산정하게 됩니다.
• 이 주택의 입주예정일은 사정에 따라 변경될 수 있으며 정확한 입주시기는 추후 개별 통보합니다.
• 예비입주자의 지위는 최초 공급계약 체결일부터 60일까지 유지되며, 해당 기간이 경과한 다음날에 소멸됩니다.
• 44A형 1세대(103동 109호) 및 44BH형 1세대(102동 104호)는 가정어린이집 설치·운영을 위한 공간으로 배정되었으며, 가정어린이집 임차인은 입주개시 전 별도 공고를 통해 모집할 예정입니다.
• 세대 가스공급 설비가 시공되지 않으므로 가스레인지, 가스건조기 등 도시가스 사용기반의 기구사용이 불가합니다.
| 3. 신청자격 및 입주자 선정방법 |
대학생, 청년, 신혼부부 및 한부모가족, 고령자, 주거급여 수급자등
▶ 자세한 내용은 첨부 파일 참조
| 4. 공급일정 및 신청방법 등 |
■ 공급일정
| 청약신청 (인터넷 PC/모바일) |
서류제출대상자 발표 | 서류제출 | 당첨자 발표 | 계약체결 (전자계약) |
| ‘22.07.11(월) 10:00 ~ ‘22.07.13(수) 17:00 ※ 24시간 신청가능 (단, 시작일과 마감일제외) ※ 수정 및 삭제는 신청당일만 가능 (현장접수) 7.11(월) 10시~17시 (점심시간 12시∼13시 제외) ※ LH 경기지역본부 1층 대강당 |
‘22.07.29(금) 17:00 이후 (확인방법) LH청약센터 (apply.lh.or.kr) - 인터넷청약 - 청약결과조회 - ‘서류제출대상자 조회’ |
22.08.01(월) ~ '22.08.05(금) (서류제출방법) 등기우편 (등기우편발송주소) 경기도 성남시 분당구 성남대로54번길 3, LH경기지역본부 임대공급운영1부 평택소사벌 A-7블록 행복주택 담당자 앞 * 등기우편은 ‘22.8.5(금) 우체국 소인분까지 유효함 * 일반우편 접수불가 |
‘22.10.21(금) 17:00 이후 (확인방법) LH청약센터 (apply.lh.or.kr) - 인터넷청약- 청약결과조회- ‘당첨/낙찰자조회’ 또는 ARS(1661-7700) |
| 7. 당첨자 발표 및 계약 안내 |
■ 당첨자 발표 [22.10.21(금) 17:00 이후]
• 주택의 동ㆍ호는 공급대상자 및 신청형별에 따라 동별, 층별, 향별 구분 없이 추첨합니다.
• LH 청약센터(https://apply.lh.or.kr) 및 ARS(1661-7700)를 통해 당첨 발표일로부터 30일간 확인할 수 있으며, 당첨 사실을 확인하지 못하여 계약 체결을 못한 경우의 책임은 신청자 본인에게 있습니다.
- 조회방법 : LH청약센터(https://apply.lh.or.kr) → 고객서비스 → 임대주택 → 당첨조회
• 신청인원이 모집호수를 초과할 경우, 모집호수의 일정비율을 예비자로 선정하며, 예비자는 당첨자의 미계약 또는 해약시 순위에 따라 계약 체결합니다. 단, 예비입주자의 지위는 최초 공급계약 체결일부터 60일까지 유지되며, 해당 기간이 경과한 다음날에 소멸됩니다.
• 선순위 예비자의 계약결과에 따라 변경되는 입주 예비순위는 공사 홈페이지에서 확인이 가능합니다.
- 조회방법 : LH청약센터(https://apply.lh.or.kr) → 고객서비스 → 임대주택 → 예비입주자순위
■ 계약안내
• 전자계약 [ 기간 : 22.11.09(수) 10:00 ~ 22.11.11(금) 17:00 ]
• 계약금 입금 후 전자계약 기간 내 온라인으로 계약체결 가능합니다. (개인별 가상계좌 및 전자계약 상세절차는 추후 당첨자에게 개별 안내 예정)
※ 예비입주자가 공공임대주택에 계약 후 입주한 경우 다른 공공임대주택(국민·영구·행복·통합) 입주대기자 명부에서 제외됩니다. 단, 입주여부는 실 입주일을 말하며, 입주지정기간 후는 임대보증금 완납으로 판단합니다.
※ 미성년자의 경우 현장 계약만 가능하오니 유의하여 주시기 바랍니다. (개별 안내 예정)

▶ 자세한 내용은 첨부 파일 참조
| 임대문의 |
• 콜센터 : 전국 대표전화 1600-1004
(평일 09:00 ~ 18:00, 주말 및 공휴일 제외) • 인터넷 - 마이홈포털 (http://www.myhome.go.kr) - LH 청약센터 (https://apply.lh.or.kr) - 평택소사벌 A-7블록 행복주택 홈페이지(https://www.lh-ptsa7.co.kr) - 행복주택 공식 블로그 (http://blog.naver.com/happyhouse2u) - LH 홈페이지 (http://www.lh.or.kr) |
| 당첨자 ARS |
ARS(☎1661-7700) 확인방법 : 1번 당첨자 조회 → 주민등록번호(13자리) 입력 → 당첨확인
|
| 인터넷 청약 |
‧ PC : LH 청약센터(http://apply.lh.or.kr) → 인터넷청약 → 청약신청(임대주택)
‧ 모바일 : “LH 청약센터“ 앱(App) 설치 → 임대주택 → 청약신청(임대주택) |




댓글