군산구암 국민임대주택 예비입주자 모집 공고 ✔ 군산구암휴먼시아 아파트 51형 ✔ 신청방법 임대료 조건 자격 ✔ LH 전북지사 공공임대 청약 평면도 구조

▪ 청약통장 순위(가입)확인서 확인 시 주택명 및 주택관리번호
| 주택명 |
주택관리공단(주) 군산구암 휴먼시아 아파트
|
| 주택관리번호 | 2023-000596 |
공급대상 위치
| 단지명 | 단 지 위 치 | 건설호수 | 최초입주 |
| 군산구암 | 전북 군산시 궁멀길 55-8(구암동 614) | 5개동 406호 | 09.09 |
https://tourbook.tistory.com/4114
헷갈리는 공공건설 임대주택 차이점 ✔ 통합공공임대 영구 국민임대주택 장기전세주택 매입임
헷갈리는 공공건설 임대주택 차이점 ✔ 통합공공임대 영구 국민임대주택 장기전세주택 매입임대 행복주택 전세임대 분양전환 ✔ 임대기간 공급조건 대상 자산기준 소득기준 https://www.myhome.go.kr
tourbook.tistory.com
공급대상 및 임대조건
이번 군산구암 국민임대주택 예비입주자 모집 공고의 공급계획은 다음과 같습니다.
공급형 51형 임대보증금은 25,137,000원이고 월임대료는 144,510원이고 전환가능 증액 보증금 한도액은 최대 14,000,000원 감액 보증금 한도액은 최대 20,000,000원입니다. 최대 증액 전환시 임대보증금은 39,137,000원이고 월임대료는 62,840원 입니다.
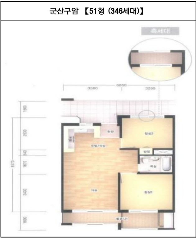
형별 앞자리 수가 주거전용면적(㎡)을 나타내며 51.9400㎡의 주거전용면적을 포함하여 합계면적 78.0667㎡가 계약면적이 됩니다.

해당 주택은 5개동 406호로 건설되었으며 최초입주일은 2009년 09월 입니다.
임대조건의 임대보증금 및 월임대료는 모집공고일 현재 기준이며, 예비입주자로 선정된 고객께서 임대차계약을 체결하는 시점에 당해 주택의 임대조건이 변경된 때에는 변경된 임대조건으로 계약하셔야 합니다.

평면도 내부구조

공급일정
| 단지 및 주택형 | 신청순위 | 신청접수 | 인터넷/모바일신청 서류제출 대상자 발표 |
| 군산구암 51형 |
1,2,3순위 | [현장접수] 2023.11.10.(금) 10:00∼17:00 ※ 인터넷으로는 10:00 ~ 17:00까지 신청하실 수 있습니다. |
2023.11.17.(금) 16:00 이후 |
당첨자 발표
| 인터넷/모바일 신청자 서류제출 일시 | 서류제출장소 (등기우편 주소지) |
예비입주자 당첨발표 |
현장방문 신청장소 |
| 2023. 11. 17.(금) ~ 2023. 11. 23.(목) 등기우편 제출 ※ 2023. 11. 23.(목) 까지 우체국소인이 찍힌 등기우편까지만 유효하게 접수됨을 알려드립니다. |
[현장,등기우편 제출] [전북 군산시 궁멀길 55-8 (구암동 614)] 군산구암 아파트 관리사무소 |
2024. 2. 22(목) 16:00 이후 주택관리공단 홈페이지 (www.kohom.or.kr) |
군산구암 아파트 관리사무소 ☎ 063- 445-0995 |
신청자격
입주자모집공고일(2023.10.31.) 현재 무주택세대구성원으로서 아래의 ‘소득 및 자산보유 기준’을 충족하는 사람
■ 성년자
■ 무주택세대구성원 (세대에 속하는 사람 전체가 무주택인 세대의 구성원)
■ 단독세대주 제한
■ 불법전대자 입주자격 제한
■ 소득 및 자산 보유기준 적격자

신청서류
※ 아래의 제증명서류는 입주자 모집공고일(2023.10.31.) 이후 발급분에 한함
■ 기본서류




■ 사회취약계층 입증서류 (해당자만 제출) >> 첨부파일 참조
■ 현장방문 신청자 추가 구비(제출)서류 >> 첨부파일 참조
온라인 청약 신청 방법
‧ PC : LH 청약플러스(http://apply.lh.or.kr) → 청약 → 임대주택 → 청약신청하기
‧ 모바일 : “LH 청약플러스“ 앱(App) 설치 → 청약 → 임대주택 → 청약신청
[청약신청주택] 주택명 : 주택관리공단(주) 군산구암 휴먼시아 아파트, 주택관리번호 : 2023-000596

문의처
|
단지명
|
관할 사무소 |
신청문의
전화번호 |
||
| 사무소명 | 우편번호 | 주 소 | ||
| 군산구암 | 군산구암 관리사무소 | 54043 | 군산시 궁멀길 55-8(구암동 614) | 063-445-0995 |
|
임대문의
|
콜센터 |
전국 대표전화 1600-1004(평일 09:00 ~ 18:00)
|
| 인터넷 | ‧ 콜센터 : 전국 대표전화 1600-1004 또는 1670-0003 ‧ 인터넷 - 마이홈포털 (http://www.myhome.go.kr) - 행복주택 공식 블로그 (http://blog.naver.com/happyhouse2u) - LH 홈페이지 (http://www.lh.or.kr) |
|
|
당첨자 ARS
|
☏ ARS(☎1661-7700) 확인방법 : 1번 당첨자 조회 → 주민등록번호(13자리) 입력 → 당첨확인 | |
모집공고문, 팸플릿 첨부
| 본 블로그는 LH 한국토지주택공사 임대주택 분양주택 신청방법 ✔ LH 공공건설 통합공공임대 매입 국민 영구임대 장기전세 주상복합 아파트 도시형생활주택 분양전환 청약 청년주택 임대료 조건 신청 자격 평면도 내부구조등을 정리하여 포스팅합니다. https://tourbook.tistory.com/ |
군산구암 국민임대주택 예비입주자 모집 공고 ✔ 군산구암휴먼시아 아파트 51형 ✔ 신청방법 임대료 조건 자격 ✔ LH 전북지사 공공임대 청약 평면도 구조

댓글