인천시 남동구지역 국민임대주택 예비입주자 모집 ✔ 인천장수주공아파트 46형 ✔ 신청방법 임대료 조건 자격 ✔ LH 인천남동권주거지원종합센터 공공임대 청약 평면도 구조

▪청약통장 순위(가입)확인서 확인시 주택명 및 주택관리번호
| 주택명 |
2023.11.06 LH 국민임대 예비입주자 모집공고
|
| 주택관리번호 |
2023-000619
|

공급대상 위치
| 단지명 | 단 지 위 치 | 건설호수 | 최초입주 | |
| 인천장수 | 인천광역시 남동구 장수로 27 | (장수동 806-3 장수휴먼시아 1단지) | 8개동 795호 | ‘05.07 |

https://tourbook.tistory.com/4114
헷갈리는 공공건설 임대주택 차이점 ✔ 통합공공임대 영구 국민임대주택 장기전세주택 매입임
헷갈리는 공공건설 임대주택 차이점 ✔ 통합공공임대 영구 국민임대주택 장기전세주택 매입임대 행복주택 전세임대 분양전환 ✔ 임대기간 공급조건 대상 자산기준 소득기준 https://www.myhome.go.kr
tourbook.tistory.com
공급대상 및 임대조건
이번 인천시 남동구지역 국민임대주택 모집 공고의 공급계획은 다음과 같습니다.
공급형 46형 총 2개유형으로 공급되며 금회 모집할 예비자수는 총 50명입니다.
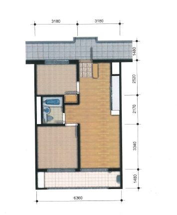
형별 앞자리 수가 주거전용면적(㎡)을 나타내며 46형 46일반의 경우 46.22㎡의 주거전용면적을 포함하여 주거공용 및 그밖에 공용면적을 합하여 합계면적 77.1901㎡가 계약면적이 됩니다.
총 8개동 795호로 건설되었으며 복도식구조에 지역난방이며 최초입주일은 2005년 07월입니다.

임대조건은 46일반 임대보증금은 1,033,350원이고 월임대료는 255,390원이고 전환가능 증액 보증금 한도액은 최대 26,000,000원입니다. 최대 증액 전환시 임대보증금은 46,667,000원이고 월임대료는 103,720원입니다.
46측 주택형과는 약간의 금액차이가 있습니다.

평면도 내부구조


공급일정
| 단지명 | 주 택 형 |
신청순위 | 신청접수 |
|
인천장수
|
전용
50㎡ 미만 |
1순위 (남동구) |
2023.11.20(월) 10:00∼17:00 |
| 2순위 (연수구, 미추홀구, 부평구 및 부천시, 시흥시) |
2023.11.21(화) 10:00∼17:00 |
||
| 3순위 (1,2순위에 해당 되지 않는 지역) |
2023.11.22(수) 10:00∼17:00 |
당첨자 발표
| 인터넷/모바일신청 서류제출 대상자 발표 |
인터넷/모바일신청자 서류제출기간 및 방법 | 예비입주자 당첨발표 |
|
- 서류제출기간
등기우편 : 2023.12.04(월) ∼2023.12.08(금) 현장제출 : 2023.12.11(월) ∼2023.12.12(화) - 서류제출방법 (등기우편 또는 현장 제출) * 방법 : 8. 인터넷(PC·모바일) 청약자 중 서류제출대상자 신청서류 제출방법 안내 ※등기우편접수 주소※ (우편번호 21582) 인천광역시 남동구 선수촌공원로17번길 12 두용프라자 6층 LH남동권주거지원종합센터 국민임대공급 담당자앞 (신청자 단지, 형별, 접수번호, 핸드폰 기재요망) * 등기우편은 ~ '23.12.08(금) 우체국소인이 찍힌 우편까지 유효 |
신청자격
입주자 모집공고일(2023.11.06)현재 무주택세대구성원으로서 아래의 소득, 자산보유 기준, 기타 법에 정한 요건 충족 하는 사람
■ 성년자
■ 무주택세대구성원 (세대에 속하는 사람 전체가 무주택인 세대의 구성원)
■ 단독세대주 제한
■ 불법전대자 입주자격 제한
■ 소득 및 자산 보유기준 적격자 (아래 첨부파일 참조)

신청서류
※ 아래의 제증명서류는 입주자 모집공고일(‘23.11.06) 이후 발급분에 한함
■ 공통 제출서류 (필수제출)

■ 신청자격・순위 등 보완서류 (해당자만 제출)

■ 사회취약계층 입증서류 (해당자만 제출)


온라인 청약 신청 방법
‧ PC : LH 청약플러스(http://apply.lh.or.kr) → 청약 → 임대주택 → 청약신청하기
‧ 모바일 : “LH 청약플러스“ 앱(App) 설치 → 청약 → 임대주택 → 청약신청
※ 인터넷(모바일) 청약신청은 첫날과 마감일을 제외하고 24시간 가능하며, 청약 마감시간까지 접수완료 하여야 합니다.
※ 인터넷 청약시스템은 공동인증서를 소지한 경우에 한하여 신청 가능하며, LH 홈페이지에서 제공하는 “청약신청 연습하기”를 통하여 사전에 미리 청약 절차를 연습하여 청약하시기 바랍니다.
문의처
|
단지명
|
관할 사무소 |
신청문의
전화번호 |
|
| 사무소명 | 주 소 | ||
| 인천장수 | LH 인천남동권주거지원종합센터 | 인천광역시 남동구 선수촌공원로 17번길 12 (구월동 1542-2), 두용프라자 6층 우)21582 |
1600-1004 |
|
임대문의
|
콜센터 |
전국 대표전화 1600-1004(평일 09:00 ~ 18:00)
|
| 인터넷 | ‧ 콜센터 : 전국 대표전화 1600-1004 또는 1670-0003 ‧ 인터넷 - 마이홈포털 (http://www.myhome.go.kr) - 행복주택 공식 블로그 (http://blog.naver.com/happyhouse2u) - LH 홈페이지 (http://www.lh.or.kr) |
|
|
당첨자 ARS
|
☏ ARS(☎1661-7700) 확인방법 : 1번 당첨자 조회 → 주민등록번호(13자리) 입력 → 당첨확인 | |

모집공고문, 팸플릿 첨부
| 본 블로그는 LH 한국토지주택공사 임대주택 분양주택 신청방법 ✔ LH 공공건설 통합공공임대 매입 국민 영구임대 장기전세 주상복합 아파트 도시형생활주택 분양전환 청약 청년주택 임대료 조건 신청 자격 평면도 내부구조등을 정리하여 포스팅합니다. https://tourbook.tistory.com/ |
인천시 남동구지역 국민임대주택 예비입주자 모집 ✔ 인천장수주공아파트 46형 ✔ 신청방법 임대료 조건 자격 ✔ LH 인천남동권주거지원종합센터 공공임대 청약 평면도 구조

댓글